MEDLEY 3.0 Satteldach - Alles ist möglich
Mit MEDLEY 3.0 bieten wir bewährte Hauskonzepte, erweitert um neue Wohntrends und moderne Architektur, für mehr Vielfalt und Möglichkeiten bei Ihrem Traumhaus.

- große Quadratmeterspanne
- universellstes Hauskonzept
- Variantenreichtum bei Dachform und Kniestock
- Eingang sowohl trauf- als auch giebelseitig möglich

Mehr Vielfalt, mehr Möglichkeiten für Ihr Traumhaus.
Unser Ziel bei der Entwicklung unserer Hauskonzepte ist es, Bewährtes zu verbessern, neue Wohntrends aufzugreifen und zeitgemäße Architektur zu präsentieren. Mit MEDLEY 3.0 bieten wir unseren Bauherren eine erweiterte Planungsreihe, die auf große Beliebtheit stößt. Sie bietet noch mehr Vielfalt und Möglichkeiten, um Ihr persönliches Traumhaus zu gestalten. Passen Sie MEDLEY 3.0 ganz einfach an Ihre Wünsche, Ideen und Bedürfnisse an.
Entdecken Sie die Vielfalt unserer Grundrissideen und Sonderbauteile anhand ausgewählter Planungsvorschläge. Ein Wintergarten oder Erker kann beispielsweise an verschiedenen Positionen am Haus integriert werden.
Auch bei der Kniestockhöhe bieten Ihnen MEDLEY 3.0 eine große Vielfalt. Sie können zwischen 1,00 m, 1,30 m, 1,60 m oder sogar 2,15 m wählen. Sofern der Bebauungsplan Ihrer Gemeinde dazu keine Vorgaben macht, entscheiden Sie einfach nach Geschmack und Platzbedarf, welche Kniestockhöhe Ihr persönlicher Favorit ist.
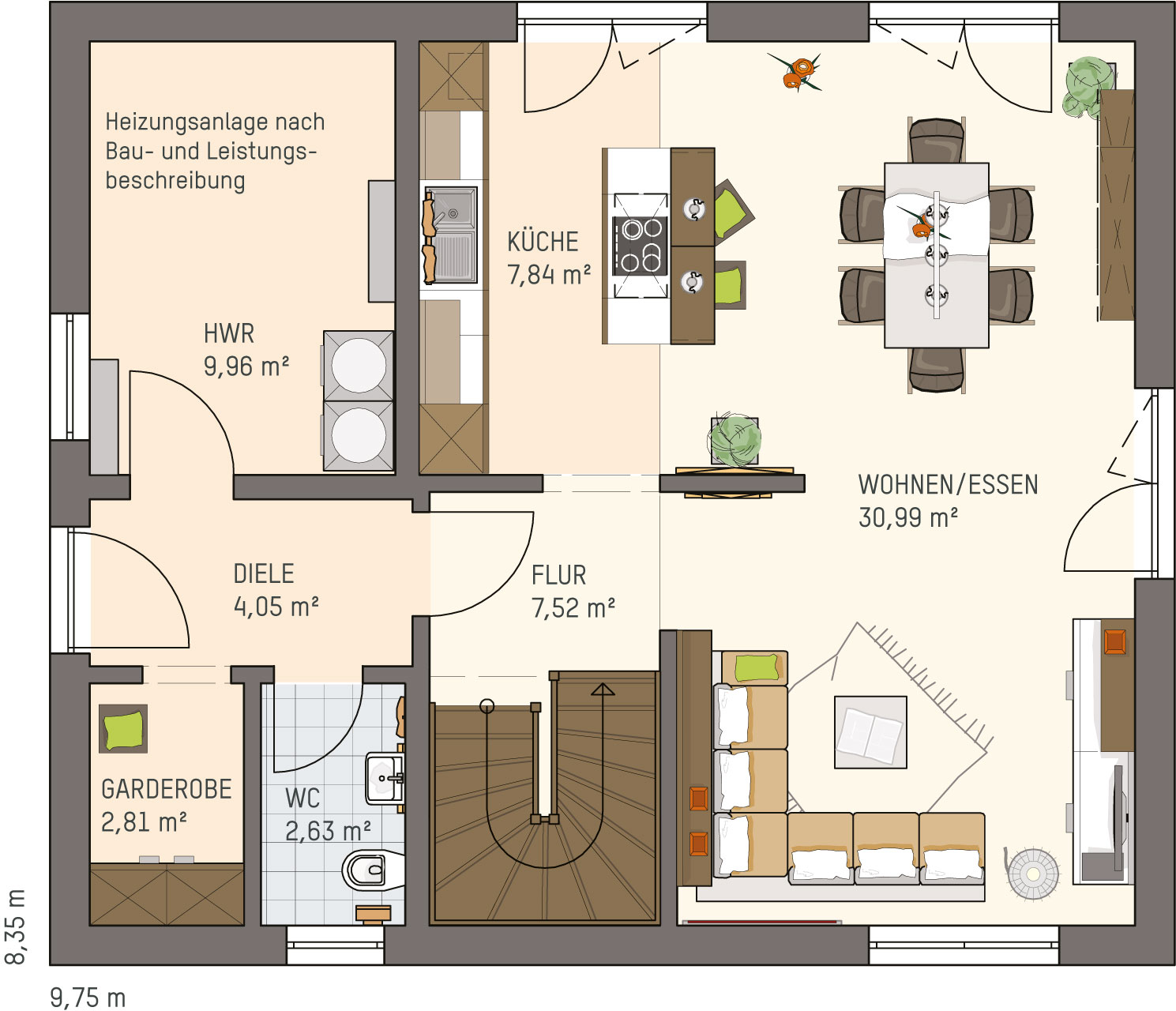
Planungsvorschlag MEDLEY 3.0 100
Daten & Fakten von MEDLEY 3.0 100
Damit Sie Ihre Favoriten-Häuser markieren können, müssen Sie sich vorab bitte im Serviceportal "Mein Finger-Haus" einloggen. Im Serviceportal werden anschließend Ihre Favoriten-Häuser aufgeführt.
Noch nicht registriert?
Dann registrieren Sie sich kostenlos im Serviceportal "Mein Finger-Haus".
Das Besondere bei MEDLEY 3.0
Hier finden Sie eine Auswahl möglicher Sonderbauteile, die bei dem MEDLEY 3.0 Statteldach umsetzbar sind. Fragen Sie Ihren Fachberater gerne nach weiteren Sonderbauteilen.
Welchen Kniestock hätten Sie gern?

Das MEDLEY 3.0 ist flexibel
Das MEDLEY 3.0 ist in vier verschiedenen Kniestockhöhen erhältlich. Je nachdem, ob Sie sich für 1,00 m, 1,30 m, 1,60 m oder 2,15 m entscheiden, wird die Dachschräge flacher und der Innenraum im Dachgeschoss geräumiger.
In diesem Beispiel zeigen wir Ihnen, wie sich die unterschiedlichen Kniestockhöhen auf das Raumgefühl in Ihrem neuen Zuhause auswirken. Anhand eines Schlafzimmers im MEDLEY 300 B wird der Unterschied verdeutlicht. In manchen Bebauungsplänen der Städte und Gemeinden werden Kniestockhöhen vorgeschrieben. Falls keine Vorgaben existieren, können Sie nach Ihrem Geschmack entscheiden.
Sie wollen mehr wissen? Wählen Sie Ihre Kontaktmöglichkeit.

Serviceportal FingerHaus
Profitieren Sie von exklusiven Vorteilen in unserem Serviceportal

Beratung in
Ihrer Nähe.
Ihr Fachberater berät Sie gerne – vor Ort in unseren Musterhäusern und Beratungsbüros oder digital!

Musterhaus besuchen.
FingerHaus live Erleben: Besuchen Sie eines unserer Musterhäuser














































































